长沙理工大学803结构力学2005年真题
标签: #真题
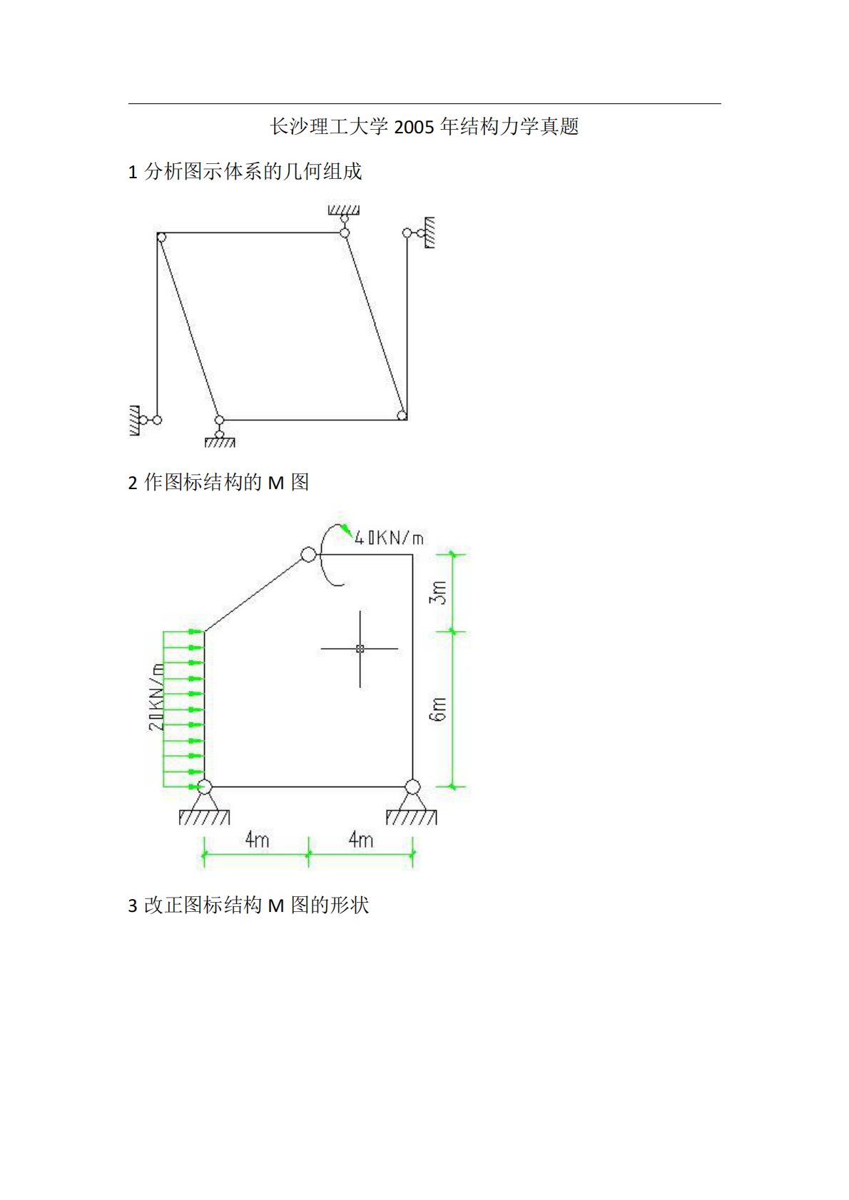
长沙理工大学2005年结构力学真题1分析图示体系的几何组成2作图标结构的M图3改正图标结构M图的形状4求图示桁架杆1,2的内力5求图示钢架中截面B的转角6单位荷载在梁DE上移动,求梁AB中,BCRM的影响线7用力矩分配法作图标结构的M图(已知q40/KNm,各杆EI相同)8作图标结构的,BKRM的影响线,并求给点荷载作用下,BKRM的值9用力法作M图(各杆EI相同,杆长均为L)10用位移法作图标结构M图(EI为常数)百校文库—海量高校资料共享库百校文库是一个线上大学生专业学习资料共享平台,致力于通过用户自主上传与分享,打造一个涵盖各大高校、各学科门类的免费资源中心。平台已积累50万+套历年真...
相关推荐
-
黑龙江大学735考古学专业基础名词解释(考古学、博物馆、文物学)大杂烩VIP免费
2026-02-25 999+ -
黑龙江大学735考古学专业基础中国南方崖葬 的类型学考察VIP免费
2026-02-25 999+ -
黑龙江大学735考古学专业基础文化遗产VIP免费
2026-02-25 999+ -
黑龙江大学735考古学专业基础福建武夷山市葫芦山遗址2014年发掘简报VIP免费
2026-02-25 999+ -
黑龙江大学735考古学专业基础冲刺笔记VIP免费
2026-02-25 999+ -
黑龙江大学735考古学专业基础厦大冲刺笔记VIP免费
2026-02-25 999+ -
黑龙江大学735考古学专业基础郑州二VIP免费
2026-02-25 999+ -
黑龙江大学735考古学专业基础中国文物古迹保护准则VIP免费
2026-02-25 999+ -
黑龙江大学735考古学专业基础考古学十八讲题目总结VIP专享
2026-02-25 999+ -
黑龙江大学735考古学专业基础文化遗产整理VIP专享
2026-02-25 999+
相关内容
-
黑龙江大学735考古学专业基础厦大冲刺笔记
分类:考研考博类
时间:2026-02-25
标签:无
格式:PDF
价格:1 知币
-
黑龙江大学735考古学专业基础郑州二
分类:考研考博类
时间:2026-02-25
标签:无
格式:PDF
价格:1 知币
-
黑龙江大学735考古学专业基础中国文物古迹保护准则
分类:考研考博类
时间:2026-02-25
标签:无
格式:PDF
价格:1 知币
-
黑龙江大学735考古学专业基础考古学十八讲题目总结
分类:考研考博类
时间:2026-02-25
标签:无
格式:PDF
价格:3 知币
-
黑龙江大学735考古学专业基础文化遗产整理
分类:考研考博类
时间:2026-02-25
标签:无
格式:PDF
价格:3 知币

